Progettare, calcolare, organizzare, gestire i sogni e le aspettative dei nostri Clienti,
offrendo loro nuove costruzioni, ristrutturazioni e servizi sostenibili, all’avanguardia e di qualità.
Offrire ai nostri Clienti una serie completa di prestazioni tecniche e consulenze tecnico-legali in grado di soddisfare il “pianeta casa” di oggi.
Mettere a disposizione dei nostri Clienti la professionalità, l’esperienza e la serietà maturati in tanti anni di lavoro, con continui aggiornamenti professionali e adeguamenti normativi.
ATTIVITÀ
INGEGNERIA
Architettura
Consulenze
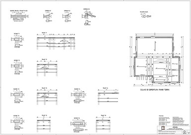
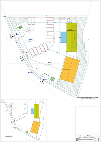
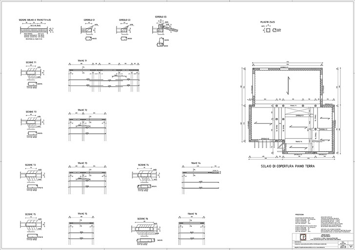
Lo Studio Tecnico Bonari garantisce progettazione, calcoli strutturali e direzione dei lavori per la nuova realizzazione e la ristrutturazione di edifici residenziali ed industriali/artigianali, compresa la progettazione dell’impiantistica.
ARCHITETTURA
Lo Studio Tecnico Bonari offre tutti quei servizi e prestazioni legate all’aspetto prettamente architettonico in fase di progettazione e direzione dei lavori per la nuova realizzazione e la ristrutturazione di edifici residenziali ed industriali/artigianali, compresa la progettazione d’interni e d’arredamenti.
Lo Studio Tecnico Bonari offre un’ampia gamma di servizi di consulenza tecnico-legale connessa con il mondo dell’edilizia, dell’immobiliare e della gestione di beni immobili: da perizie e stime immobiliari a predisposizione di contratti preliminari di compravendita ed affittanze; da assistenza a compravendite immobiliari a predisposizione di contratti di appalto e affidamento dei lavori; da assistenza per dichiarazioni di successione a predisposizione di pratiche per recuperi fiscali.
PROGETTI
INGEGNERIA
Lo Studio Tecnico Bonari garantisce progettazione, calcoli strutturali e direzione dei lavori per la nuova realizzazione e la ristrutturazione di edifici residenziali ed industriali/artigianali, compresa la progettazione dell’impiantistica.
Architettura
Lo Studio Tecnico Bonari offre tutti quei servizi e prestazioni legate all’aspetto prettamente architettonico in fase di progettazione e direzione dei lavori per la nuova realizzazione e la ristrutturazione di edifici residenziali ed industriali/artigianali, compresa la progettazione d’interni e d’arredamenti.
Consulenze
Lo Studio Tecnico Bonari offre un’ampia gamma di servizi di consulenza tecnico-legale connessa con il mondo dell’edilizia, dell’immobiliare e della gestione di beni immobili: da perizie e stime immobiliari a predisposizione di contratti preliminari di compravendita ed affittanze; da assistenza a compravendite immobiliari a predisposizione di contratti di appalto e affidamento dei lavori; da assistenza per dichiarazioni di successione a predisposizione di pratiche per recuperi fiscali.